A continuación mostramos, a modo de resumen, algunos de los trabajos realizados en el estudio a lo largo del año 2017. Durante el año esperamos poder ir realizando, poco a poco, en el formato habitual, pequeños artículos sobre algunos de ellos. Simplemente sirva como muestra del trabajo en el que hemos invertido el tiempo el pasado año.
OBRAS FINALIZADAS
A principios de año se dio por finalizada la obra, y a mediados de marzo se inauguraba el restaurante BoiGorri en el casco histórico del Concello. Para ello, se realiza la rehabilitación integral de un pequeño edifico entre medianeras, de bajo y dos plantas. Obtener una buena comunicación entre espacios, tanto funcional, como espacialmente, que además favorezca la iluminación del espacio interior, son las premisas básicas sobre las que se desarrolla el proyecto. Acero y madera se combinan con la piedra existente en busca de un espacio confortable.
Fotografías: boigorri.es
Situada en un pequeño bajo comercial, en el casco histórico de Allariz, la librería Maruxairas busca dar una nueva vida a los libros ya leídos. El local se concibe no solo como un lugar de compra venta si no, como bien define en su página web (maruxairas.gal), un espacio en el que gozar de esa búsqueda, de ese paseo visual y táctil entre portadas, lomos, páginas, palabras, ilustraciones, historias.
Fotografías: Carmen Blanco
En el Concello de Carballo realizamos esta pequeña intervención en un bajo comercial, para ubicar en el una delegación de la "tienda de objetos bonitos" Punto e Coma (puntoecoma.gal). En consonancia con el espíritu de la misma, el espacio debía ser más que una tienda de regalos, más que una librería.
Fotografías: Punto e Coma
Aprovechando al máximo los elementos ya disponibles en el local (funcionando antes como restaurante), se diseña, para la sociedad BenComún (bencomun.gal) este espacio de trabajo en comunidad colaborativa. Con la menor intervención posible, se busca crear un espacio funcional y eficiente, con los servicios y comodidades necesarias para favorecer trabajo y convivencia.
Fotografías: Carmen Blanco
Fotografías: Carmen Blanco
La intervención en espacios de mercado municipal es ya uno de los trabajos habituales dentro del grupo de trabajo Ágora Concepto, del cual formamos parte. A lo largo del pasado año intervenimos en diferentes espacios de estas características, en los concellos de Mondariz, Tomiño (O Seixo) y Moeche, además de iniciar los trabajos para una futura reforma en el mercado de Mugardos.
La actuación se encuadra en el interior de un edificio singular. Dentro de las limitaciones presupuestarias, además de subsanar las deficiencias técnicas existentes en el edificio, se pretende una adecuación del espacio interior, buscando una mayor flexibilidad de uso del espacio central para la realización de actividades vinculadas con el mercado (exposiciones, degustaciones, comidas, etc.). Reforma de instalaciones, renovación de acabados y creación de mobiliario son algunos de los trabajos realizados en el edificio.
Fotografías: Propias
Fotografías: Propias
Siguiendo con los trabajos ya iniciados en este tipo de espacios, con la reforma del mercado de O seixo, el concello de Tomiño decide adecuar el espacio de mercado existente en el núcleo de Goián. Se trata de un pequeño mercado de cuatro puestos (carne, pescado, fruta y flores) que busca ser una prolongación del ya existente en O Seixo. Trasladar la imagen de un espacio a otro, creando una identidad propia de mercado, será uno de los objetivos fundamentales.
Fotografías: Propias
Fotografías: Propias
Aprovechando parte de una de las naves existentes en el amplio recinto ferial del concello, se busca la adecuación de un espacio para la celebración de mercados temporales. La obra busca mejorar las condiciones de habitabilidad y confort interiores, mediante la creación de lucernarios, la apertura de ventanales y la renovación de acabados. El diseño de un mobiliario propio permite, mediante su agregación y manipulación, crear según las necesidades de cada momento, los puestos necesariios para la venta.
Fotografías: Propias y moeche.gal
Mercado do Xurés. Bande
Fotografías: Propias y moeche.gal
A principios de año se ponía en funcionamiento el Mercado do Xurés. Un mercado temporal, situado en el antiguo edificio de mercado municipal, habilitado a tal efecto. El proyecto ya lo subimos con anterioridad al blog. Lo tenéis disponible en el siguiente enlace Mercado do Xurés.
Fotografías: Propias
Fotografías: Propias
A lo largo del 2017 iniciamos los trabajos para una futura reforma del mercado de San Telmo, en Mugardos, mediante la elaboración de un proyecto de usos. En resumidas cuentas, la propuesta busca la unificación y redistribución del espacio interior (dividido en tres espacios independientes en estos momentos), la renovación de acabados e instalaciones y la adecuación del entorno inmediato al edificio. La obtención de espacios interiores luminosos y de escala adecuada e, como siempre, uno de los focos fundamentales del trabajo.
Renders propios. Incorporados en el proyecto de usos.
Renders propios. Incorporados en el proyecto de usos.
También dentro del grupo de trabajo Ágora Concepto, pero fuera de lo que es el ámbito de mercados, realizamos la reforma interior de un bajo en Ourense para albergar un nuevo restaurante O Pepiño de Allariz (opepinhodeallariz.com). La reforma cambia por completo la imagen del local, trasladando y adecuando la imagen propia, ya existente, de O Pepiño en Allariz. Este trabajo ya se encuentra publicado en el blog, en el siguiente enlace: O Pepiño de Allariz en Ourense.
Fotografías: Propias
OBRAS EN MARCHA
A lo largo del año dimos comienzo también a algunas obras que aún se encuentran en proceso en la actualidad. Se trata de tres rehabilitaciones de vivienda en Allariz, Xunqueira de Ambía y Amoeiro.
Rehabilitación de vivienda en rúa Arroio. Allariz
Rehabilitación de vivienda en Acevedo. Xunqueira de Ambía
Fotografías: Propias
A lo largo del año dimos comienzo también a algunas obras que aún se encuentran en proceso en la actualidad. Se trata de tres rehabilitaciones de vivienda en Allariz, Xunqueira de Ambía y Amoeiro.
Se trata de una pequeña vivienda que ocupa un parcela entre medianeras en el casco histórico del concello. Cuenta con bajo (comercial), dos plantas y bajo cubierta. La creatividad en la configuración y apertura de espacios es más importante que nunca en este caso, dado que se trata de un edificio con una sola fachada y con una superficie útil muy reducida en planta (menos de 30m2).
Fotografías: Propias
Fotografías: Propias
Obra de rehabilitación para vivienda en el núcleo rural de Acevedo, que transcurre con calma pero paso firme. Aprovechar al máximo las posibilidades del entorno y la posición privilegiada del edificio respecto al mismo son las bases de la propuesta.
Fotografías: Propias
Rehabilitación de vivienda en Abruciños. Amoeiro
Fotografías: Propias
A lo largo del 2017 dimos inicio también a esta rehabilitación en el núcleo rural de Abruciños. La necesidad de aumento en altura debe ser combinada con la correcta adecuación del edificio al medio rural en que se sitúa. Madera (en la propia fachada incluso), piedra y acero se combinan nuevamente para configurar los diferentes espacios.
Fotografías: Propias
PROYECTOS
Durante el 2017 se dio inicio también e diferentes proyectos que aún están pendientes de inicio de obra. Estos proyectos se encuentran en proceso de obtención de licencia urbanística y, si todo transcurre como es debido, esperamos dar inicio a la ejecución de los mismos a lo largo del presente año.
Vivienda en Orbazai. Lugo
Rehabilitación para vivienda en Cameselle. Nigrán
Fotografías: Propias
Durante el 2017 se dio inicio también e diferentes proyectos que aún están pendientes de inicio de obra. Estos proyectos se encuentran en proceso de obtención de licencia urbanística y, si todo transcurre como es debido, esperamos dar inicio a la ejecución de los mismos a lo largo del presente año.
Proyecto al que tenemos un cariño especial por ser el primero en que iniciamos una vivienda desde una parcela vacía. No obstante, los condicionantes urbanísticos respecto a las posibilidades de edificación, para adaptar el edificio al medio en esta zona rural de Lugo, son muy estrictos. Combinar tradición y modernidad serán pues objetivos a alcanzar en el proyecto.
La propuesta se asienta sobre los restos (hoy en ruina) de un antiguo edificio con amplios muros de piedra. Conseguir una buena iluminación y ventilación de los espacios interiores, al tiempo que se respeta la volumetría, configuración y escala propios del medio, son, como siempre para el estudio, un elemento fundamental de la propuesta.
Reforma de piso rúa Fonte do Monte. Ourense
Este proyecto se centra en la reforma interior de una piso en la ciudad de Ourense. Se redistribuyen los espacios, creando una correcta gradación entre zonas públicas y privadas, y se cambian los materiales de recubrimiento para dotar a las estancias de una personalidad propia.
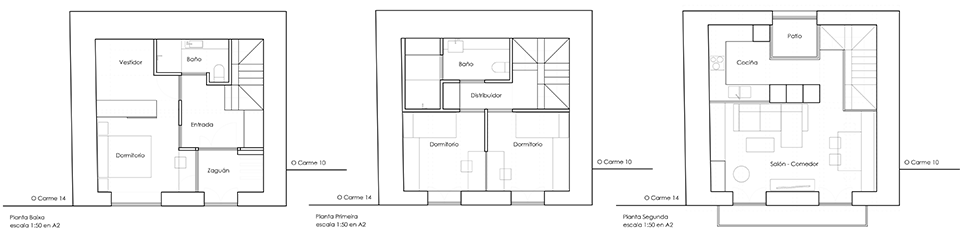
Rehabilitación de vivienda en el barrio de O Carme. Lugo
Reforma de vivienda en Casfigueiro. Piñor
Rehabilitación de vivienda en rúa Suárez. Allariz
OTROS TRABAJOS
Proyectos de actividad, informes, legalizaciones, estudios, asesoramiento, etc, son otros de los trabajos que se realizan en el estudio. Estos son algunas de las empresas que han confiado en nosotros para esto a lo largo del año: Panadería San Vitoiro, Arume by Tramiños, Pilar Aguiar Perruqueiros, Praza de Abastos nº1 de Ourense, Punto e Coma de Ourense, Peluquería Ana, Basse Reformas.
Entorno al camino de Santiago se estructura el barrio de O Carme, en Lugo. Es en este entorno, de especial interés en su protección, donde se plantea la rehabilitación de una pequeña ruina realizada en gruesos muros de pizarra. En unas condiciones espaciales muy reducidas se plantea la creación de una vivienda para tres habitaciones.
Buscando la menor intervención posible en la volumetría y estructura se planea la reforma interior de esta vivienda situada en el núcleo rural de Casfigueiro, en el concello de Piñor. Desde la necesidad por obtener unas buenas condiciones de aislamiento térmico, se plantea una redistribución de las estancias interiores, con la particularidad de que el hueco de escaleras, en este caso, ya nos viene dado.
A finales de año se entregaba para tramitación municipal el proyecto de rehabilitación de una pequeña vivienda entre medianeras, de dos habitaciones, en el casco histórico de Allariz. Conseguir un buen aprovechamiento del espacio y obtener estancias de buenas proporciones son los objetivos fundamentales en la distribución del espacio interior.
Proyectos de actividad, informes, legalizaciones, estudios, asesoramiento, etc, son otros de los trabajos que se realizan en el estudio. Estos son algunas de las empresas que han confiado en nosotros para esto a lo largo del año: Panadería San Vitoiro, Arume by Tramiños, Pilar Aguiar Perruqueiros, Praza de Abastos nº1 de Ourense, Punto e Coma de Ourense, Peluquería Ana, Basse Reformas.


















































